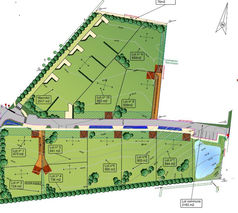
| lots | Surface | tarifs | observations | |
| 1 | 670 | m² | 82 000,00 € | Libre |
| 2 | 724 | m² | 87 000,00 € | réservé |
| 3 | 641 | m² | 80 000,00 € | réservé |
| 4 | 736 | m² | 87 000,00 € | réservé |
| 5 | 955 | m² | 104 000,00 € | Libre |
| 6 | 903 | m² | 97 000,00 € | réservé |
| 7 | 844 | m² | 95 000,00 € | réservé |
| 8 | 829 | m² | 95 000,00 € | réservé |
| 9 | 893 | m² | 97 000,00 € | Libre |
| 10 | 2517 | m² | réservé | option |
Situé sur la commune de Le Tilleul (76790), ce lotissement propose 10 parcelles à bâtir pour maisons individuelles, avec libre choix du constructeur, permettant à chaque acquéreur de réaliser un projet sur mesure.
Chaque terrain bénéficie d’un accès direct, et la viabilisation est en cours de réalisation, garantissant des parcelles prêtes à construire.
Les futurs propriétaires pourront déposer leur permis de construire dès l’automne 2026, offrant ainsi une grande flexibilité pour planifier leur projet de construction.
Ce programme constitue une opportunité idéale pour construire dans un cadre calme et agréable, tout en profitant de la liberté de choisir son constructeur.
Pour plus d’informations ou connaître les parcelles disponibles, n’hésitez pas à nous contacter.
Situé sur la commune de Le Tilleul (76790), ce lotissement propose 10 parcelles à bâtir pour maisons individuelles, avec libre choix du constructeur, permettant à chaque acquéreur de réaliser un projet sur mesure.
Chaque terrain bénéficie d’un accès direct, et la viabilisation est en cours de réalisation, garantissant des parcelles prêtes à construire.
Les futurs propriétaires pourront déposer leur permis de construire dès l’automne 2026, offrant ainsi une grande flexibilité pour planifier leur projet de construction.
Ce programme constitue une opportunité idéale pour construire dans un cadre calme et agréable, tout en profitant de la liberté de choisir son constructeur.
Pour plus d’informations ou connaître les parcelles disponibles, n’hésitez pas à nous contacter.
Situé sur la commune de Le Tilleul (76790), ce lotissement propose 10 parcelles à bâtir pour maisons individuelles, avec libre choix du constructeur, permettant à chaque acquéreur de réaliser un projet sur mesure.
Chaque terrain bénéficie d’un accès direct, et la viabilisation est en cours de réalisation, garantissant des parcelles prêtes à construire.
Les futurs propriétaires pourront déposer leur permis de construire dès l’automne 2026, offrant ainsi une grande flexibilité pour planifier leur projet de construction.
Ce programme constitue une opportunité idéale pour construire dans un cadre calme et agréable, tout en profitant de la liberté de choisir son constructeur.
Pour plus d’informations ou connaître les parcelles disponibles, n’hésitez pas à nous contacter.

